SITUACIÓ:
Badia del Vallès
DATA:
2017
OBRA:
No executat
El projecte té com a objectiu essencial garantir l’habitabilitat de l’edifici millorant el confornt tèrmic, l’accessibilitat, la flexibilitat de la distribució i la millora estètica de la seva arquitectura.
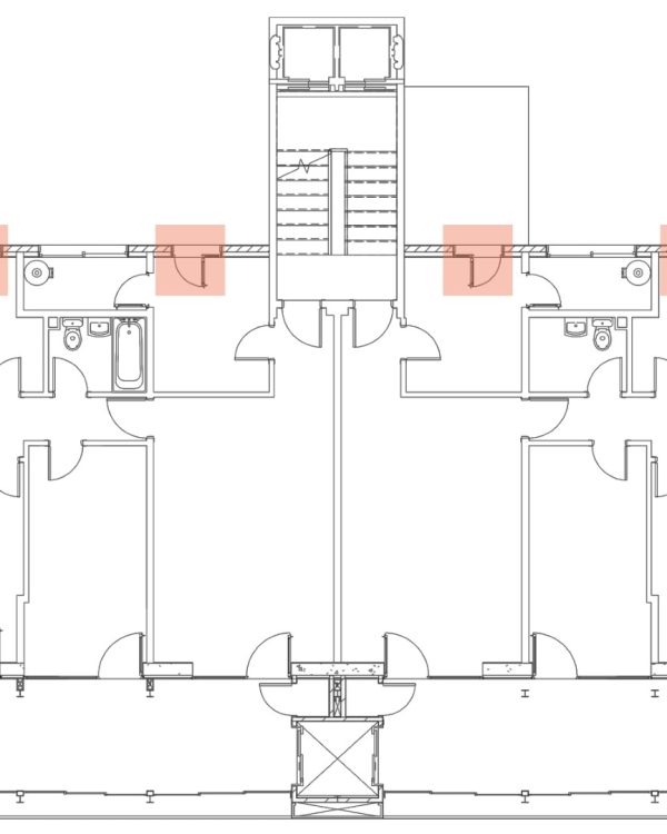
Degut a estar construït a principis dels anys 70 es tracta d’edificacions amb una alta demanda energètica per fata d’aïllament tèrmic i a composicions arquitectòniques molt rígides. A part,avui dia, el bloc té dos ascensors en la seva zona Nord, que és la zona del costat oposat a l’accés i aquests ascensors paren entre plantes i no tenen un dimensionament mínim.
El projecte es basa en la construcció d’un espai-extra que funciona com a galeria bioclimàtica i un ascensor que genera un nou accés a través de dita galeria. L’ascensor es construeix centrat a la façana amb una galeria que garanteix l’accés a l’habitatge per tres punt diferents i que, al mateix temps, és útil com a espai d’aïllant tèrmic i captador de llum solar.
Sobre altres aspectes, la intervenció serveix per a ordenar les instal·lacions de telecomunicacions en les façanes (antenes parabòliques, cablejat, etc) i condensadors d’aires condicionats, que estan instal·lats de manera irregular.
La galeria és una ampliació de 23m2 per habitatge, 46m2 per planta. Després d’haver construït les galeries, totes les finestres d’aquesta façana seran canviades per portes. Després d’això, les dues sales que estan en contacte amb la nova galeria tindran el seu propi accés. A part, en la façana preexistent s’instal·la un aïllant tèrmic de 8cm amb una cambra d’aire de 4cm.
Aquest espai-extra intenta millorar l’accessibilitat i, al mateix temps, fer l’habitatge més flexible, en crear habitacions amb un accés independent es genera la possibilitat de tenir “granny flats”, que poden ser usats de diferents maneres, de manera que resulta atractiu apara diferents perfils d’usuaris.
La nova estructura ha estat projectada per a ser coherent amb l’estructura preexistent, per la qual cosa la composició de la galeria “permet” divisions lineadas amb les parets pre-existents. Per aquest motiu, la galeria pot acabar sent l’extensió de les sales quan sigui necessari.
Parla'ns del teu projecte
Estem aquí per ajudar-te a fer realitat les teves idees. Contacta’ns i descobreix com els nostres serveis d’arquitectura i consultoria poden transformar els teus espais.





































